Atelier Yoann Lopes-Pereira

Atelier Yoann Lopes-Pereira

Actualités

17 septembre 2025

Qui dit panneau de chantier, dit permis accordé !


Une étape décisive vient d’être franchie : le projet d'extension d'une pharmacie à Antony sur lequel nous travaillons depuis plusieurs années vient d'obtenir son autorisation d’urbanisme.

Le plus grand défi commence maintenant : transformer l’idée en réalité, mettre en œuvre la conception dans ce site très particulier avec un mode constructif spécifique répondant aux contraintes d'accès.


L’aventure continue, et entre maintenant dans sa phase la plus intense : la phase PRO :

  • conception finale détaillée
  • élaboration du DCE,
  • lancement de l'appel d'offre,



C’est ici que tout se joue : préparer le chantier et donner vie à l’architecture imaginée.


👉 Dans les semaines à venir, nous partagerons l’avancée de cette extension ambitieuse, où contraintes urbaines et innovations constructives se mêlent.


Le plus grand défi commence aujourd’hui. 🚀


MOE : |aylp!| (Architecte, mandataire) , ACORUS INGENIERIE ( BET TCE, co-traitant)

Images : @aily3d

10 septembre 2025

La rentrée a été l’occasion pour l'équipe de se retrouver autour d’une visite de chantier pour suivre ensemble l’avancée du projet du cabinet paramédical à Montgeron, désormais dans sa dernière ligne droite.


Aux côtés de la maîtrise d’ouvrage, des entreprises et de l’équipe projet, nous avons constaté sur place les finitions en cours, échangé sur les ajustements restants et préparé les prochaines étapes.

Cette visite collective permet non seulement de mesurer le travail accompli, mais aussi de maintenir un dialogue direct et constructif entre tous les acteurs mobilisés.


La fin approche, et avec elle la satisfaction de voir un projet pensé depuis longtemps prendre concrètement forme.


MOA : SCI DARLAH

MOE : |aylp!|

Mission : Complète

Budget : 450k H.T

Entreprises travaux : @FDM @PRO ROSSEAU @SEEGE

8 septembre 2025

Nous étions présents ce jeudi au #SIBCA – Salon de l’Immobilier Bas Carbone, aux côtés de nos partenaires de #Z.A. Consulting.


Une belle occasion de découvrir les projets et solutions qui façonnent la ville de demain, d’échanger avec de nombreux acteurs engagés dans la transition bas carbone et de nourrir nos réflexions sur les pratiques à mettre en œuvre dès aujourd’hui.


Ces moments partagés renforcent notre conviction : c’est en travaillant ensemble, en croisant les expertises et en partageant les retours de terrain que nous pourrons répondre collectivement aux enjeux environnementaux et architecturaux à venir.


Un rendez-vous inspirant qui nourrit notre engagement pour une ville plus durable, hâte d'y retourner l'an prochain !

24 juin 2025

Nous sommes heureux de vous informer du lancement de l'appel d'offres pour la restauration des façades du château des célestins situé à Marcoussis.


Après quelques semaines d'études, le projet abouti à un dossier de consultation disponible ici : https://marchespublics-marcoussis.safetender.com/#/home/tender/29635

Nous attendons des réponses nombreuses et complètes de la part des entreprises !


Fin de la remise des offres : 18/07/2025 à 14h00

Signature des marchés : Début Août 2025 pour préparation de chantier, démarrage travaux fin septembre.

Fin travaux : 06/02/2026


équipe projet :


Maîtrise d'ouvrage : Commune de Marcoussis

Maîtrise d'œuvre : aylp!

Mission complète

Relevé état existant par nos amis géomètres expert Arkane Foncier


Merci à la commune pour la confiance accordée, ils nous tardent de démarrer le chantier.

|aylp!| = 2 arc(h) + 1 : une constante de plus à l'équation
4 juin 2025

Nous sommes ravis d’annoncer l’arrivée — ou plutôt le retour — de Sabrina Gasmi dans l’équipe qui après un stage de fin d'étude en été 2024, nous a rejoints il y a maintenant 3 mois en tant que collaboratrice à part entière.


C'est depuis 2019, sur les tables à dessin de l’ENSAPVS, qu'elle a pu assister à l'émergence d'aylp en suivant les pas de son gérant, Yoann Lopes-Pereira avec qui elle partage le même atelier, Une formation commune, exigeante, axée sur la rigueur, et un même regard sur le métier d’architecte : engagé, concret, toujours vivant. C'est aujourd'hui en tant qu'architecte diplômée d'état qu'elle rejoint l'aventure aylp!


Au sein de l'atelier, elle met à profit sa formation autant dans le développement des projets que dans leur représentation. Sa patte graphique apporte une lecture claire et expressive à nos intentions : des coupes perspectives aux dessins techniques, en passant par la mise en forme des documents écrits. Une dimension primordiale du métier qui donne à notre travail une lecture juste, soignée et toujours au service du projet.


Quand la ligne s’allonge, le récit s’enrichit, bienvenue dans l'aventure Sabrina ! 🎉

21 mai 2025

Depuis mai 2024, notre atelier a posé ses valises à Saint-Michel-sur-Orge dans un espace pensé comme on conçoit nos projets : fonctionnel, lumineux et humain.


Au programme : un grand openspace pour croiser les idées, une matériauthèque pleine de textures et de couleurs, des tables hautes pour les échanges, un coin repas pour les pauses bien méritées… et des murs qui racontent nos projets en perspectives, croquis et calques.


C’est ici que l’on imagine, débat, trace, modifie, recommence, recevons — ensemble avec nos commanditaires. Un espace pensé pour refléter notre méthode de travail : rigueur, clarté et partage au cœur de chaque étape de conception.


Alors, vous passez quand ? ☕

12 mai 2025

Une parcelle en longueur, une orientation maîtrisée, et cette envie : faire dialoguer la rigueur géométrique et la fluidité de l’usage.

Telle était la demande de nos commanditaires avec qui nous avons dessinés l'intégralité de ce projet avec eux dans nos locaux à travers leur véritable récit de l'usage


La volumétrie s’élève en jeux de retraits, de hauteurs, de percées :

→ Une entrée en double hauteur, séquence inaugurale baignée de lumière

→ Un rez-de-chaussée traversant, où séjour, cuisine et salle à manger s’enchaînent sans cloisonner

→ Une chambre d’amis discrète, trois chambres à l’étage, dont une suite calme et généreuse

→ Et à l’avant, une piscine creusée pour terminer le dessin


218 m² de lignes nettes et de volumes francs, des façades animées par les retraits et débords :

un projet qui met en scène une architecture sobre, mais expressive.


📍 Montlhéry

📐 Mission partielle: permis de construire

MOE : |aylp!|

Image 3D : aily3D

Statut : Avis favorable septembre 2024



7 mai 2025

La transformation de l’ancienne école de danse en cabinet de kinésithérapie suit son cours avec énergie ! Après plusieurs semaines d’intervention, la phase de démolition et gros œuvre touche à sa fin pour débuter le second œuvre :

Après un curage conséquent, la dépose et le désamiantage de la toiture existante ont laissé place à sa réfection complète avec la mise en œuvre d'une ossature en bois pour la nouvelle couverture qui se retrouvera également en façade via un bardage.


Les anciennes cloisons disparaissent, libérant tout le potentiel des 435 m² à réinventer avec un nouveau cloisonnement


Cette étape cruciale marque le point de bascule vers la reconstruction et la mise en œuvre des nouveaux espaces de soins. Le squelette du bâtiment est prêt à accueillir une nouvelle organisation pensée au millimètre près pour répondre aux besoins des praticiens et patients.


Prochaine étape ? Démarrage des travaux de l'élévateur, pose des nouvelles menuiseries, finalisation de l'ITE et incorporation des réseaux techniques

On avance, on construit, on transforme ! 🚧


MOA : SCI DARLAH

MOE : |aylp!|

Mission : Complète

Budget : 450k H.T

Entreprises travaux : @FDM @PROROSSEAU @SEEGE

5 mai 2025

Quand un dégât des eaux vient révéler des failles d’étanchéité, il faut agir vite — mais surtout bien. À Montreuil, nous avons été appelés pour réhabiliter une toiture dont les verrières souffrant de malfaçons laissaient passer l’eau… et le froid.


🔧 Au programme :

✔ Réfection complète de la toiture en zinc

✔ Dépose des verrières non étanches et modification des chevêtres

✔ Installation de Velux pour un apport de lumière maîtrisé et une parfaite étanchéité

✔ Remplacement de l'isolation en toiture et amélioration énergétique

✔ Reprise complète des peintures et sols impactés


Les travaux se sont poursuivis avec la remise en peinture de la pièce principale et de la cage d’escalier qui dessert les deux étages de l’appartement, la pose d’un nouveau parquet, la pose d’appuis de fenêtres en aluminium et la création de niches décoratives .


Une intervention rapide, propre, et un appartement sain et lumineux à l’arrivée 🌤️


MOE : |aylp!|

Mission : Mission complète

Lieu : Montreuil

Statut : Livré Novembre 2024

9 avril 2025

Révéler le passé, construire le futur.

Préserver sans figer, rénover sans trahir.


C’est tout l’enjeu de ce projet de réhabilitation des façades d’un château chargé d’histoire: le Château des Célestins à Marcoussis dont nous venons d’être missionne pour ce projet


Merci à la mairie de Marcoussis pour leur confiance et leur engagement dans cette aventure collective.


Construit en 1859 par l’architecte parisien François Claude Latour, le château prend place sur l’ancien site d’un couvent de moines célestins. De ce couvent, détruit à la Révolution après avoir connu incendie et réappropriations, subsistent aujourd’hui deux caves voûtées en berceau et une portion du portail d’entrée. Le château, acquis par la ville en 1974, abrite aujourd’hui l’École des Arts. Ses façades, inchangées depuis leur édification, témoignent d’une époque qu’il nous appartient de révéler, non de transformer.


En tant qu’architecte, intervenir sur un tel bâtiment, c’est avant tout écouter les murs, comprendre les matériaux, se plonger dans son histoire et respecter les traces du temps tout en apportant des solutions techniques durables et cohérentes.


👉 Analyse de l’état sanitaire des parements


👉 Choix des matériaux compatibles avec les existants


👉 Reprise des modénatures, traitement des pathologies, harmonisation des teintes…


Chaque geste compte.


Chaque pierre repositionnée est un fragment de mémoire que l’on soigne.


🛠️ Patrimoine vivant, architecture en mouvement.

8 avril 2025

Révéler le passé, construire le futur.

Préserver sans figer, rénover sans trahir.


C’est tout l’enjeu de ce projet de réhabilitation des façades d’un château chargé d’histoire: le Château des Célestins à Marcoussis.


Construit en 1859 par l’architecte parisien François Claude Latour, le château prend place sur l’ancien site d’un couvent de moines célestins. De ce couvent, détruit à la Révolution après avoir connu incendie et réappropriations, subsistent aujourd’hui deux caves voûtées en berceau et une portion du portail d’entrée. Le château, acquis par la ville en 1974, abrite aujourd’hui l’École des Arts. Ses façades, inchangées depuis leur édification, témoignent d’une époque qu’il nous appartient de révéler, non de transformer.


En tant qu’architecte, intervenir sur un tel bâtiment, c’est avant tout écouter les murs, comprendre les matériaux, respecter les traces du temps tout en apportant des solutions techniques durables et cohérentes.


👉 Analyse de l’état sanitaire des parements


👉 Choix des matériaux compatibles avec les existants


👉 Reprise des modénatures, traitement des pathologies, harmonisation des teintes…


Chaque geste compte.


Chaque pierre repositionnée est un fragment de mémoire que l’on soigne.


Merci à la mairie de Marcoussis pour leur confiance et leur engagement dans cette aventure collective.


🛠️ Patrimoine vivant, architecture en mouvement.


26 mars 2025

Réhabilitation thermique & végétalisation : un même projet, deux leviers d’impact


🌿 500 rues piétonnes et végétalisées à Paris ?


C’est la question posée aux citoyens parisiens le week-end dernier.


Végétalisation et réhabilitation ne sont pas des tendances pour nous, mais une pratique quotidienne portée collectivement par notre groupement : Z.A.CONSULTING, aylp! et ACORUS INGENIERIE


Et si certaines démarches relèvent de la volonté politique, il ne suffit pas de déclarer, il faut penser, concevoir, adapter. Car chaque rue, chaque quartier, chaque parcelle a ses propres contraintes et opportunités.


La transformation de la ville se joue au cas par cas, en tenant compte de l’architecture existante, des usages, de l’histoire du site, et du climat urbain local.


C’est exactement ce que nous avons fait, aux côtés d’ICF Habitat, pour un projet de réhabilitation de 107 logements en site occupé à Paris.


👉 Un projet qui dépasse le simple "rafraîchissement" et transforme une cour privative en véritable îlot de fraîcheur, tout en répondant aux besoins concrets des habitants


🛠️ Ce que nous avons embarqué dans cette réhabilitation :


  • Une rénovation thermique ambitieuse, passant d’une étiquette D à B, avec l’obtention des labels BBC et HQE (ITE, remplacement des menuiseries, réfection et isolation des toitures, ventilation) et l'emploi de produits biosourcées.
  • Une résidentialisation du site, avec 3 fois plus d'espaces verts sur une cour de 1000 m².
  • La mise en accessibilité complète des 6 halls d’entrée, rendue possible grâce à l’intervention dans la cour.
  • Une amélioration de la défense incendie, tout en réduisant de plus de moitié les surfaces imperméables en enrobé.



🌱 Ce projet illustre à quel point la transformation écologique ne peut pas être une recette unique appliquée à grande échelle.


Elle naît de l'écoute, de l’analyse fine, et de la volonté de faire différemment, à chaque fois.


La ville de demain se construit dans les détails, souvent invisibles… mais essentiels.


Informations du projet :


MOA : ICF HABITAT (Yan HOFER)

MOE : Z.A.CONSULTING (Architecte mandataire, Emira ZAAG), aylp! (Architecte co-traitant, Yoann LOPES-PEREIRA), ACORUS INGENIERIE (BET TCE, Etienne HUGUET, Amale CHAFER)

Marché public, mission complète + OPC

Montant travaux : 5 630 000 H.T

Phase : Préparation Chantier

🏗️ Permis de construire : L'architecte, votre expert des règles d'urbanisme !
24 mars 2025

Comprendre les règles d'urbanisme et obtenir un permis de construire peut sembler insurmontable ?

Découvrez comment aylp! transforme ce défi en opportunité !


Notre expertise consiste à décrypter les subtilités réglementaires pour concrétiser vos projets :


  • Analyse approfondie du PLU
  • Optimisation des distances de séparation
  • Solutions techniques innovantes
  • Gestion complète du dossier administratif


Le processus de permis de construire est identique pour tous, l'accompagnement fait toute la différence. Délivré par votre mairie, le permis de construire nécessite une expertise pointue.

Notre équipe anticipe les exigences spécifiques de votre dossier et propose des solutions astucieuses.

En adaptant méticuleusement votre projet aux contraintes locales, nous maximisons vos possibilités constructives tout en respectant la réglementation. Cette approche sur-mesure sécurise votre permis et optimise vos possibilités constructives .


🎯 Dossiers précis, visant l'absence de complétude

🤝 Relations fluides avec l'administration

📂 Optimisation technique du projet

⏰ Respect des délais réglementaires


Un projet de construction ou de rénovation en tête ?

aylp! vous guide à travers le labyrinthe administratif pour concrétiser vos rêves ! 🤝

19 mars 2025

| chantier |


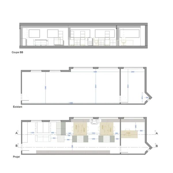
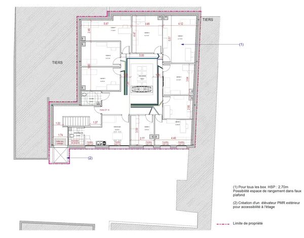
Imaginez : transformer 435m² d'une ancienne école de danse en un centre paramédical moderne et rentable... Un défi passionnant que |aylp!| s'apprête à relever ! ✨


Top départ pour ce nouveau chantier ! Le début de 6 mois de travaux à l’issue desquels un nouveau centre médical de 18 cabinets verra le jour.


Notre mission ? Maximiser chaque mètre carré pour créer 18 espaces de soins fonctionnels, tout en respectant un budget maîtrisé. Un véritable puzzle architectural où chaque pièce compte !


La clé de la réussite ? Une approche en plusieurs phases parfaitement orchestrée pour donner une nouvelle vie à ce bâtiment


  • Rez-de-chaussée optimisé pour les kinésithérapeutes : les salles de danse laissent place à des salles de consultation et à un plateau de rééducation qui accueillera désormais le spectacle des patients tout aussi doués,
  • Étage aménagé pour diverses spécialités paramédicales : une signalétique intérieure conçue pour des indications claires tout en couleurs,
  • Installation d'un élévateur aux normes PMR : une mise en accessibilité indispensable pour l'accès à tous,
  • Réhabilitation énergétique : pour leur confort, une isolation par l’extérieur est prévue sur l'enveloppe du bâtiment habillée de façades en bardage métallique,
  • Obtention rapide des autorisations municipales : une conception intelligente qui rentre toujours dans le cadre légal.




Notre expertise dépasse le cadre de l'architecture : nous avons activement contribué à rendre le projet rentable et finançable en accompagnant nos clients dans l'élaboration de leur business plan. Une réhabilitation lourde transformée en investissement intelligent !


L'agencement des espaces a été pensé pour maximiser le potentiel locatif tout en créant une atmosphère propice aux soins.

Une réussite qui démontre qu'avec une vision claire et une méthodologie rigoureuse, les contraintes budgétaires deviennent des opportunités d'innovation. 🔄


Vous avez un projet de transformation ambitieux ? Contactez |aylp!|: ensemble, donnons vie à votre vision, étape par étape ! 🤝


MOA : Privé

Surface : 435 m2

Mission : complète

Budget : 515 000 euros H.T

Entreprises travaux : FDM Services (curage - enveloppe - gros œuvre - second œuvre - menuiseries extérieures - revêtements sols murs et plafonds) // PRO ROSSEAU (plomberie ventilation) // SEEGE (électricité)

Architecture : Les 3 clés d'une collaboration réussie avec votre architecte !
20 février 2025

Rêvez-vous d'agrandir votre maison ou de transformer votre espace professionnel ?

Découvrez comment une collaboration encadrée avec aylp! sécurise la réussite de votre projet . ✨


🧍🏻🧍🏼‍♂️Notre approche, une transparence totale, fondée sur des contrats clairs qui définissent précisément :


  • L'étendue de nos missions
  • Les étapes clés du projet
  • Les responsabilités de chacun
  • La rémunération, directement versée par vous, sans intermédiaire 📋


🔍 Dès nos premières missions de conseil, nous explorons ensemble toutes les possibilités :


  • Analyse approfondie du PLU
  • Études de faisabilité détaillées
  • Solutions d'extension créatives
  • Optimisation des espaces existants
  • Recherche de leviers de financement


👷🏼 La sécurité de votre projet est notre priorité :


  • Assurance professionnelle complète
  • Ordres de service régularisés
  • Suivi écrit rigoureux
  • Modifications de mission documentées ⚡


Chez aylp!, chaque intervention est encadrée par notre expertise et notre engagement pour l'intérêt commun.

Une approche méthodique qui transforme vos idées en réalisations concrètes ! 🎯


Vous avez un projet en tête ? Contactez-nous pour une première consultation et découvrez comment notre expertise peut sécuriser vos ambitions ! 🤝

17 février 2025

🎉 Félicitations à Radjaa NIA pour l’obtention de sa thèse professionnelle intitulée :

📖 "Implémentation du BIM au sein d'une TPE d'architecture pour répondre aux marchés publics de MOE".

Diplômée d'état en architecture, Radjaa enrichit aujourd’hui notre atelier avec une nouvelle expertise en BIM Management ! 🚀

Chez |aylp!|, tous nos projets sont conçus sous maquette numérique depuis notre lancement. Pourtant, utiliser un logiciel comme Revit ne signifie pas forcément "faire du BIM". La démarche est bien plus vaste et structurante.

La thèse de Radjaa vient éclairer ce contraste et proposer des solutions concrètes, adaptées aux TPE d’architecture en plein essor comme la nôtre. De la première sélection du marché jusqu’à la livraison et à la gestion numérique du bâtiment, son travail vise à :

✅ Structurer notre méthodologie BIM

✅ Optimiser nos processus internes

✅ Répondre efficacement aux marchés BIM de MOE

✅ Accompagner nos maîtres d’ouvrages vers une gestion numérique facilitée après livraison.

Grâce à cette montée en compétence, nous sommes désormais pleinement armés pour répondre aux marchés BIM en maîtrise d'œuvre et accompagner nos partenaires dans cette transition numérique ! 🔥

Bravo encore à Radjaa pour cette contribution précieuse qui ouvre de nouvelles perspectives à notre atelier ! 👏

#BIM #Architecture #Innovation #MarchésPublics #MOE #GestionNumérique #BIMManagement

11 février 2025

🤔 Comment agrandir une pharmacie sur une parcelle étroite, tout en respectant le PLU et l'environnement ?

Découvrez notre dernière étude architecturale à Antony, où architecture et ingéniosité rime avec écologie ! 🏗️


Face à ce défi technique, aylp! a proposé une solution spécifique prenant en compte les contraintes de mise en oeuvre du site : un système de panneaux préfabriqués manu-portables, développé grâce à l'intelligence artificielle. Exit les engins lourds et leur impact carbone ! Notre approche privilégie une construction légère, intelligente et respectueuse de son environnement. 🌿


L'innovation ne s'arrête pas là ! Chaque étape du projet fait l'objet d'une étude carbone méticuleuse, transformant les contraintes urbanistiques en opportunités d'éco-construction.

Une démarche qui séduit autant les services d'urbanisme que notre client pharmacien, tout en permettant d'envisager la construction de ce projet sur ce site si difficile d'accès. ✨


Notre secret ? Une méthodologie rigoureuse qui allie :


  • Optimisation de la fabrication des panneaux grâce à l’IA, en appliquant le principe de l'inertie pour placer la matière avec précision uniquement là où elle est nécessaire via un accompagnement direct du fabricant
  • Installation 100% manu-portable, sans machinerie lourde, réduisant les temps de mise en oeuvre et les temps de séchage : Après fabrication et livraison, l'assemblage sur site sera réalisé en environ 1 semaine !
  • Bilan carbone maîtrisé de A à Z
  • Dialogue constructif avec les services d'urbanisme 📊


Vous cherchez à développer votre activité tout en respectant vos engagements RSE ? L'ATELIER YOANN LOPES-PEREIRA transforme vos contraintes en innovations durables ! 🤝


Contactez-nous pour découvrir comment l'architecture peut servir votre croissance tout en préservant notre planète. 🌍


MOE : aylp! (Architecte, mandataire) , ACORUS INGENIERIE ( BET TCE, co-traitant)

🏗️ L'art d'orchestrer votre projet : Dans les coulisses d'aylp!
6 février 2025

La réussite d'un projet architectural repose sur un équilibre subtil entre vision créative et gestion rigoureuse.

Découvrez comment aylp! transforme chaque chantier en une expérience fluide et transparente ! ✨


Notre méthode ? Une approche inspirée des marchés publics et encadrée par la loi MOP (Maitrise d'Ouvrage Publique). Nous privilégions ainsi la garantie d'une concurrence saine avec un classement impartial et objectif.


  • Consultation minutieuse de 3 entreprises par lot
  • Sélection des meilleurs artisans selon des critères précis
  • Validation finale par le client en toute transparence 📋


Tel un chef d'orchestre, nous harmonisons les interventions de chaque acteur :


  • Réunions de chantier régulières
  • Suivi méticuleux des bons de commande
  • Gestion proactive des plus et moins-values
  • Documentation transparente de chaque décision 🎯


Notre force ? Être l'arbitre impartial qui défend les intérêts de tous :


  • Protection des entrepreneurs contre les aléas financiers
  • Garantie de qualité pour les clients
  • Communication fluide entre toutes les parties
  • Balance financière équilibrée et maîtrisée ⚖️


Chez aylp!, nous croyons qu'un projet réussi est celui où chacun se sent respecté et valorisé. Notre approche méthodique transforme la complexité en simplicité ! 💫


Vous avez un projet ? Découvrez comment notre expertise peut orchestrer sa réussite ! 🤝